88/267-277 Castlereagh Street, Sydney, NSW 2000

Sydney

Sold

BREATHTAKING VIEWS IN AN EXQUISITE PRIME LOCATION

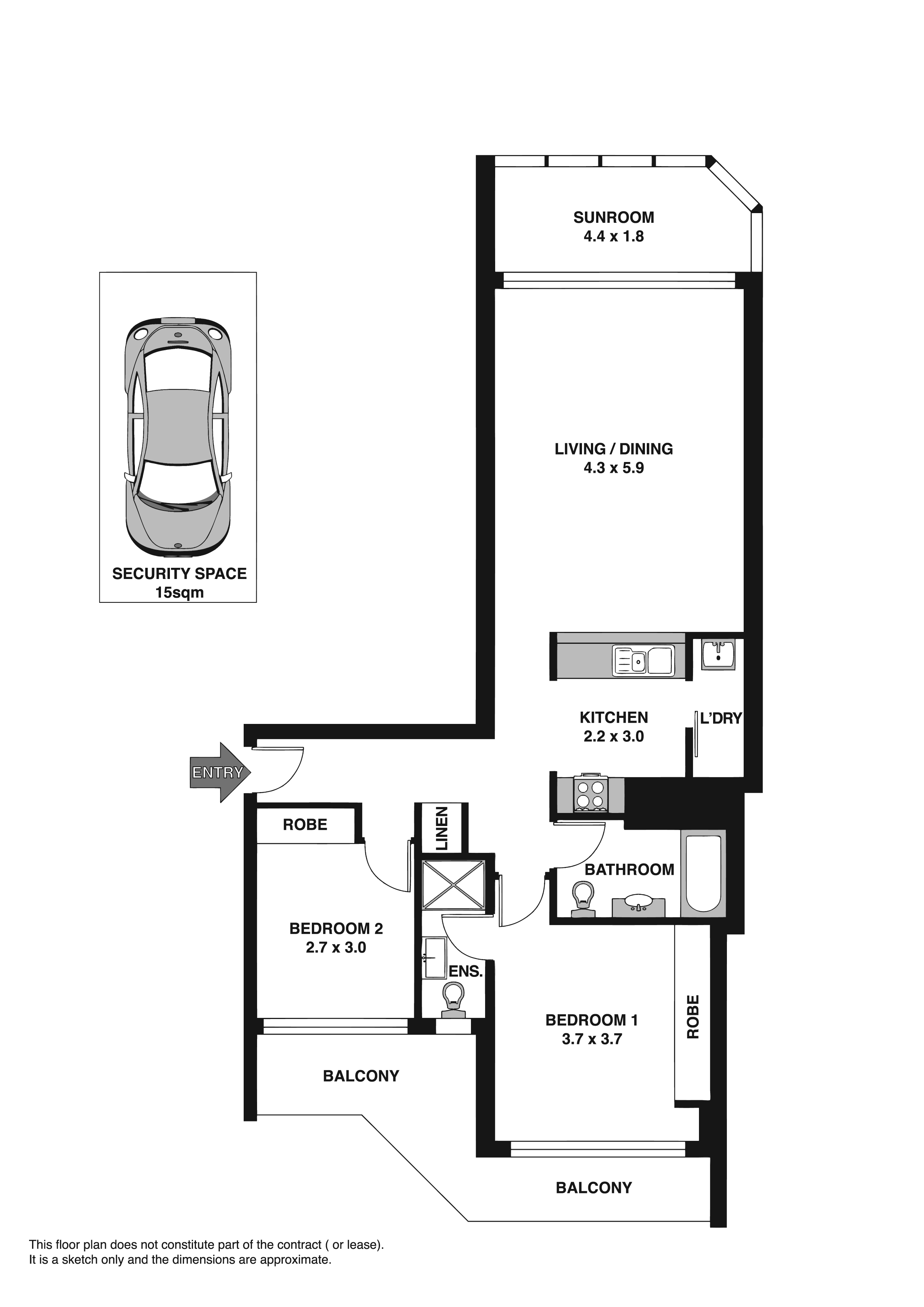
This exceptionally residence embraces low maintenance living, and takes full advantage of stunning water views over Hyde Park. With impressive proportions of open plan living and dinning areas and well-equipped kitchen.

Features :
•Two airy bedrooms with built in robes and access to a balcony
•Generous and light filled open plan living and dinning
•Resort style facilities a pool, sauna, spa, gym and squash court.
•Offers 24 hours building manager & security parking
•Moments to Town Hall / Museum stations, & major pubic transport links

Offer a lifestyle of absolute convenience and well-located property.

Kent: 0410 718 263 or Ronda 0416 286 985.

Property Links

Location

Property Snapshot

Property Features

Property ID 123844582

Bedrooms 2

Bathrooms 2

Total car spaces 1

Property Contact

Your Details
Your Enquiry
  1. Please describe how we can be of assistance to you.

  2.  

    Would you like to join our mail list?

Submit